港澳免费资料正版大全
卡伦D61122-70
产品参数
产品卖点

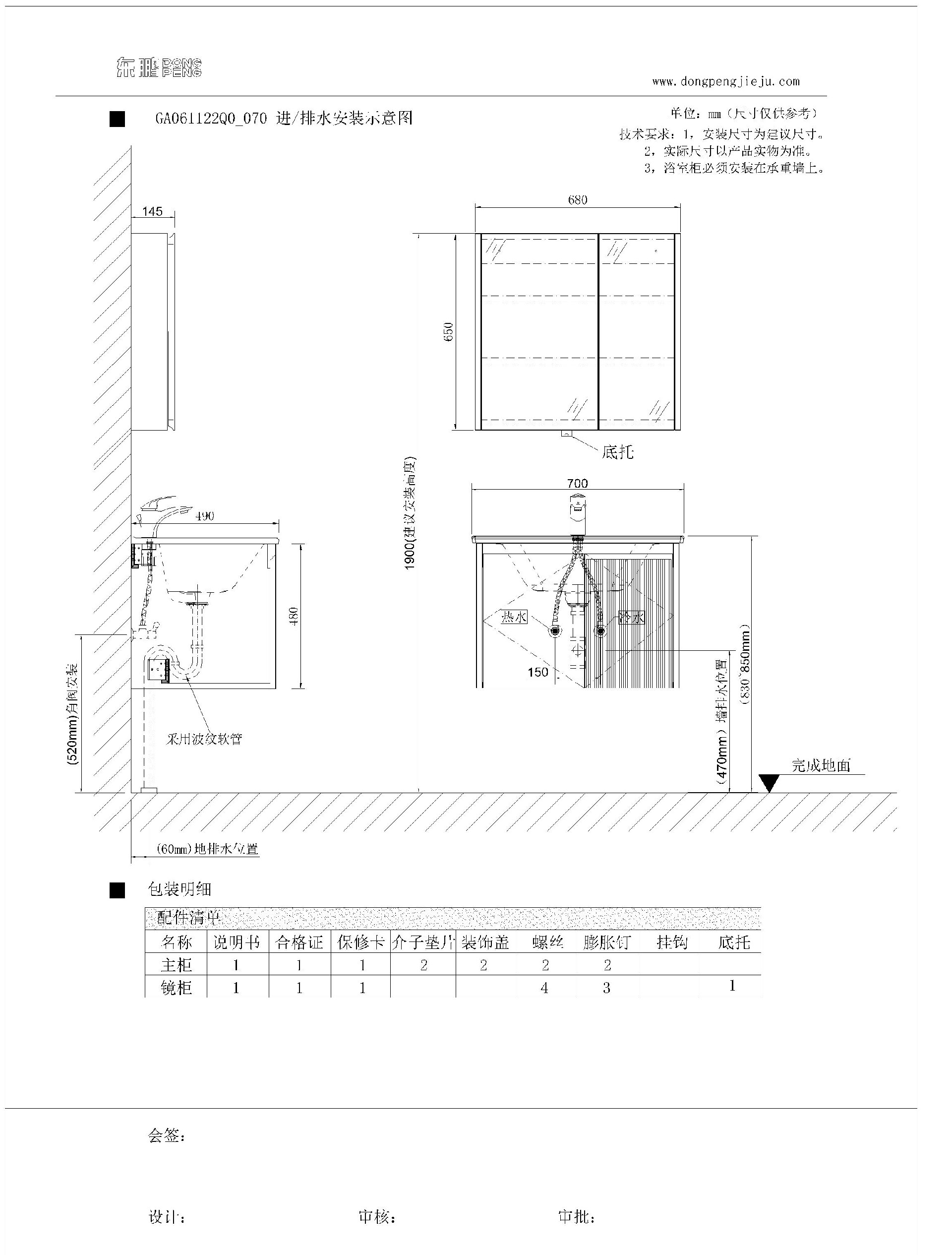
    产品尺寸:700x490x1900mm

    产品颜色:高级灰

    产品材质:铝蜂窝

    产品尺寸:

    主柜 GA061122B0_067 670x480x480mm

    镜柜 GA061122C0_068 680x145x650mm

    陶瓷盆 W31130510X  700x490x225mm

    产品型号:GA061122Q0_070


产品推荐

Product recommendations