港澳免费资料正版大全
0682Q2
产品参数
产品卖点

    产品颜色:绿色+浅紫色+维纳斯白

    产品材质:生态实木+多层实木+岩板

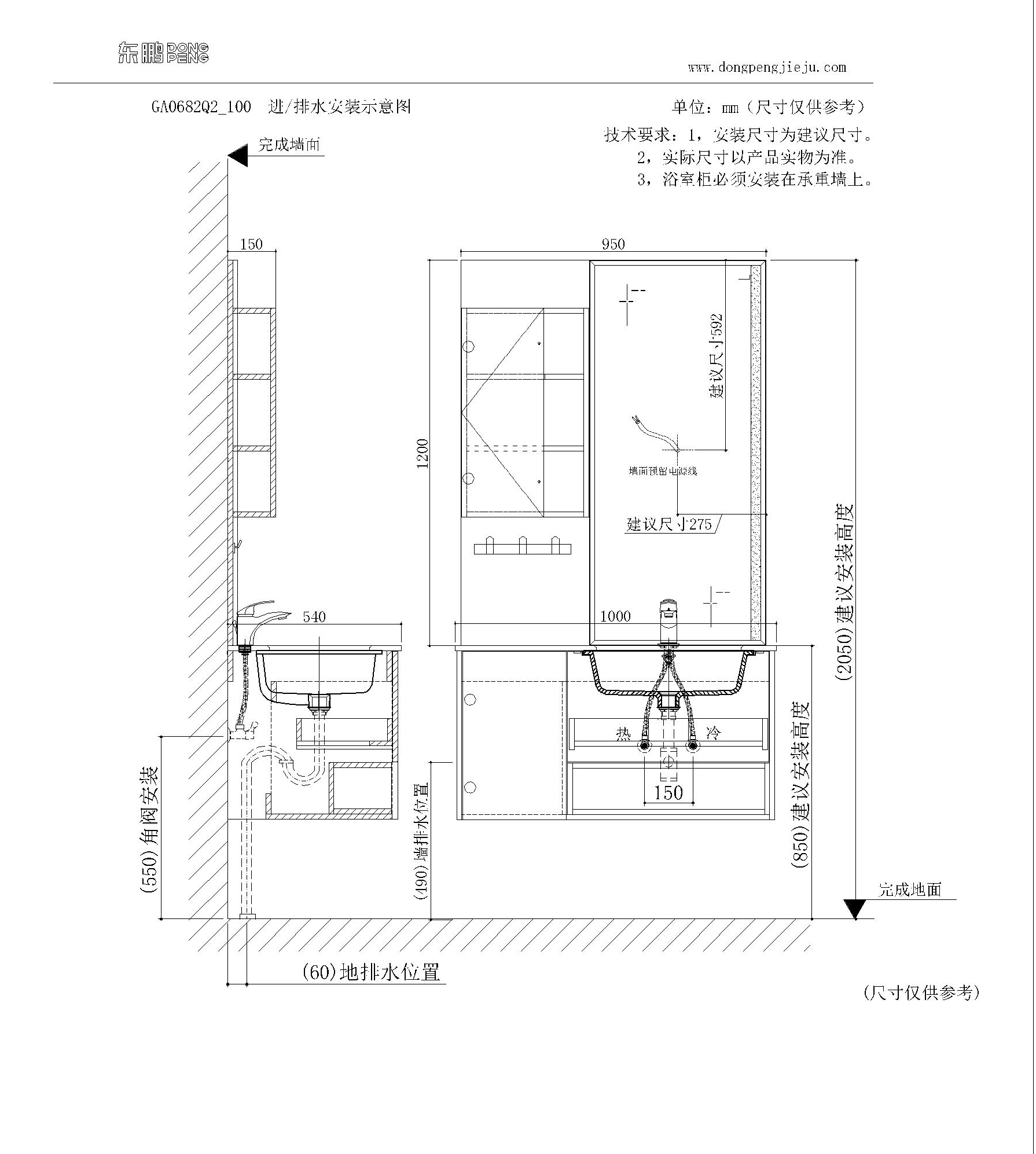
    产品尺寸:1000x540x2050mm

    主柜: GA0682B2_099 990x530x525mm

    镜子: GA0682C2_095 950x150x1200mm(含副柜)

    台面+台下盆: GA0682T2_100 1000x540x199mm

    产品型号:GA0682Q2_100

产品推荐

Product recommendations