港澳免费资料正版大全
观澜GL1022
产品参数
产品卖点

      产品颜色:蝶翅蓝+墨兰色

      产品材质:多层实木+生态实木

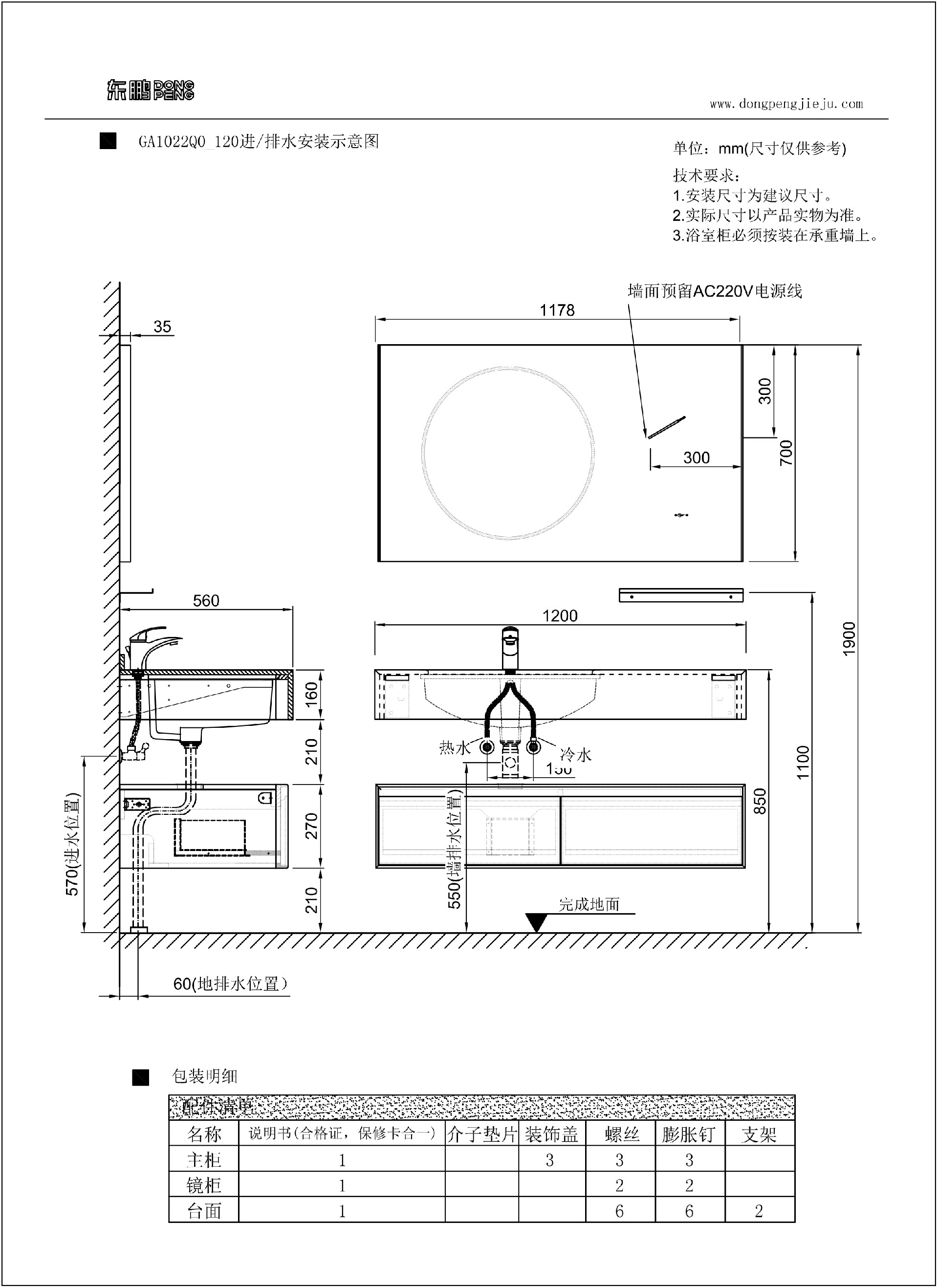
      主柜 : GA1022B0_119  1195x545x270mm

      镜子 : GA1022M0_118  1180x35x700mm

      层板:400108x44mm

      岩板+台下盆 : GA1022T0_120   580x430x215mm

      产品尺寸:1200x560x1900mm

      产品型号:GA1022Q0_120

产品推荐

Product recommendations