港澳免费资料正版大全
卡西亚1014-80
产品参数
产品卖点

      产品颜色:烟熏橡木+深空灰

      产品材质:多层实木+生态实木

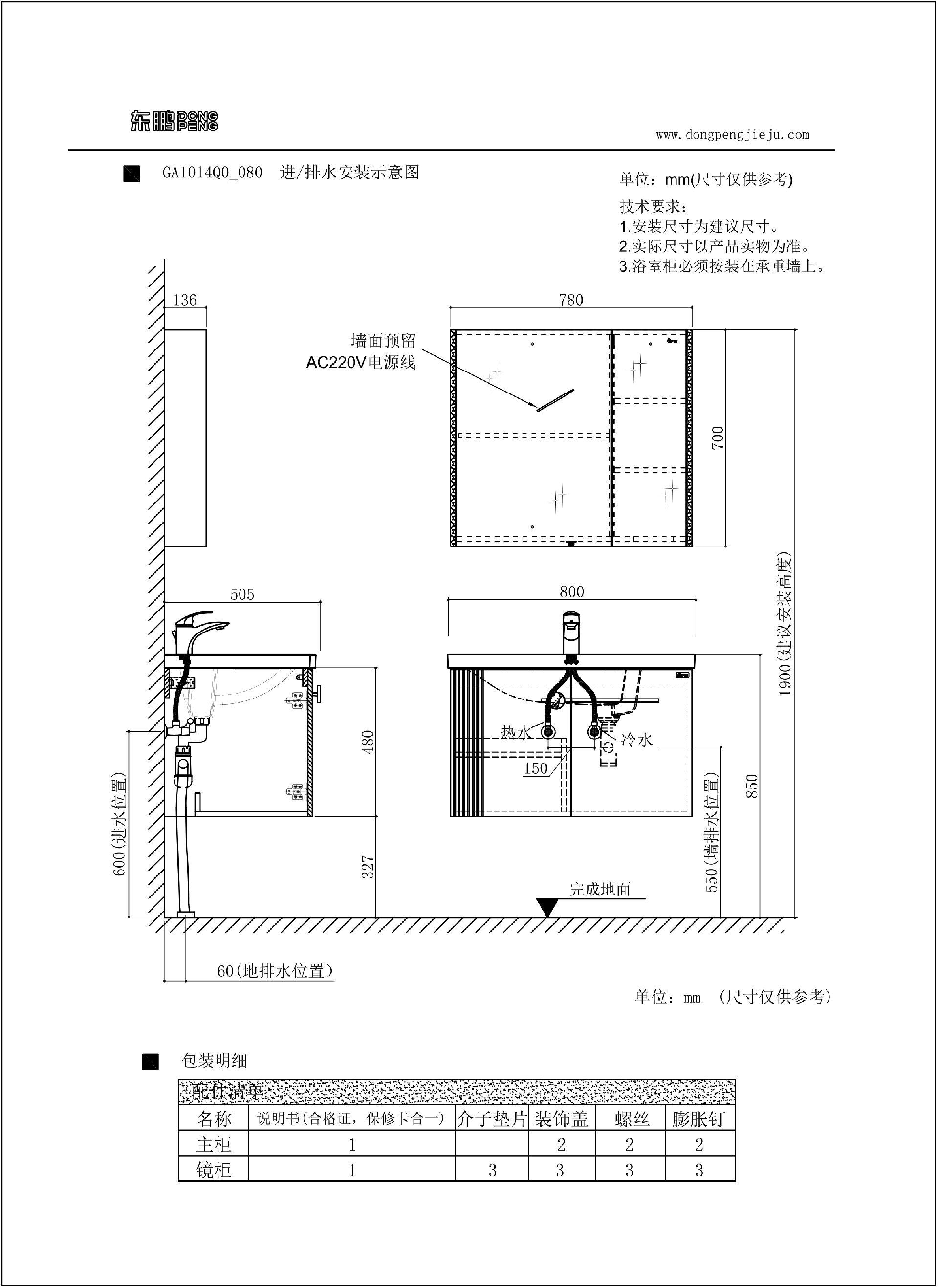
      主柜 : GA1014B0_078    780x480x400mm

      镜柜: GA1014C0_078     780x135x700mm

      陶瓷盆 :W52730510X   800x490x205mm

      产品尺寸:800x490x1900mm

      产品型号:GA1014Q0_080mm

产品推荐

Product recommendations