港澳免费资料正版大全
卡西亚1014-100
产品参数
产品卖点

      产品颜色:烟熏橡木+深空灰

      产品材质:多层实木+生态实木

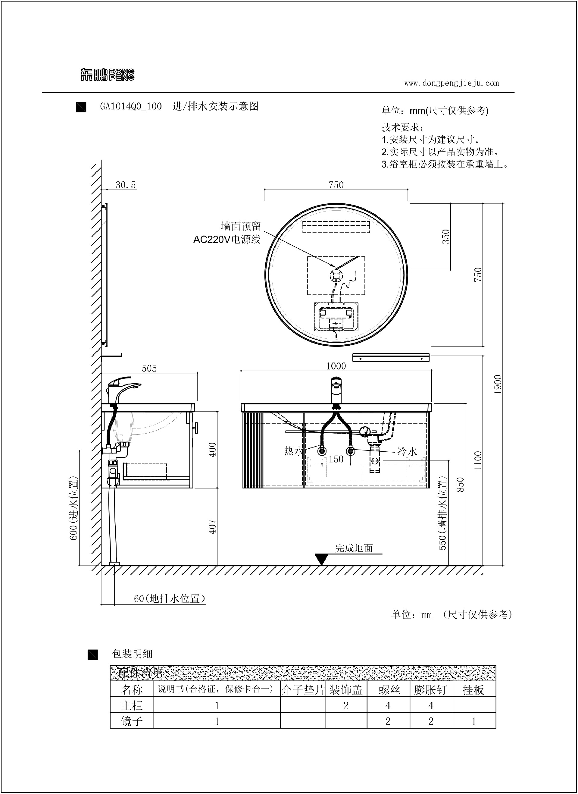
      主柜:GA1014B0_098  980x480x400mm

      镜柜 :GA1014M0_075  Ф750x30 mm

      陶瓷盆 :W52930510X    1000x490xx205mm

      产品尺寸:1000x490x1900mm

      产品型号:GA1014Q0_100


产品推荐

Product recommendations