港澳免费资料正版大全
莫语1281Q0-80
产品参数
产品卖点

    产品颜色:高级灰木纹

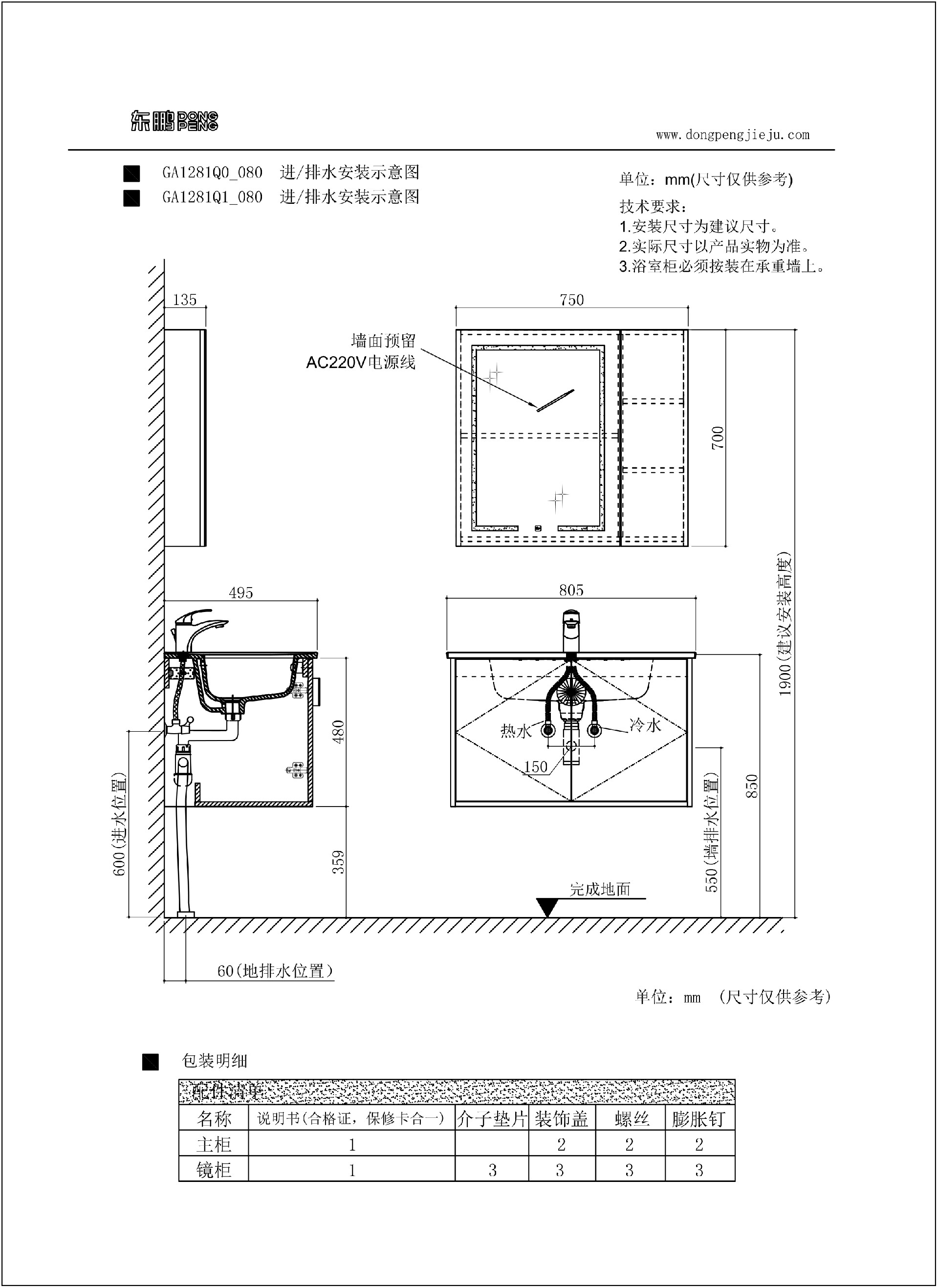
    产品尺寸:810X504X1900mm

    产品材质:生态实木

    主柜+盆:GA1281Z5_078   810X504X480mm

    镜柜:GA1281C0_075   750X135X700mm

    产品型号:GA1281Q0_080


产品推荐

Product recommendations