港澳免费资料正版大全
莫语1281Q2-80
产品参数
产品卖点

    产品颜色:高级灰木纹

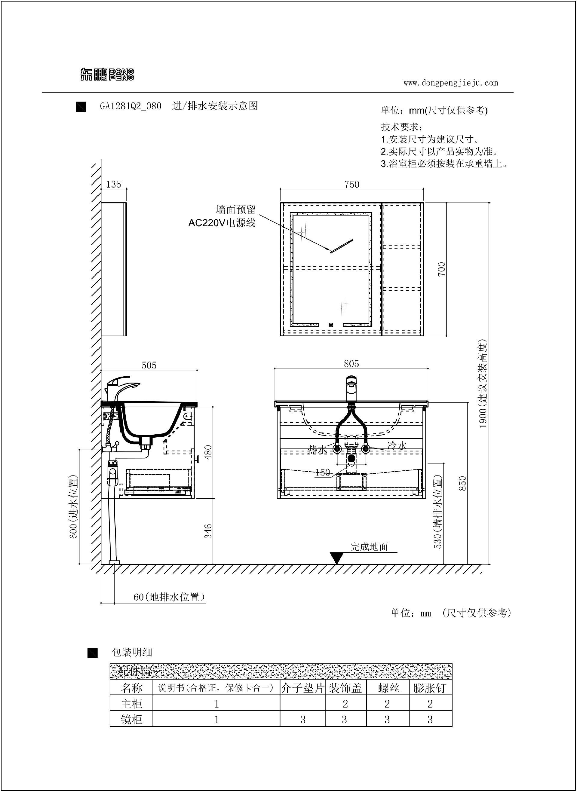
    产品尺寸:810504x1900mm

    产品材质:生态实木

    主柜:GA1281B2_078  780x480x480mm

    镜柜:GA1281C1_075  750x135x700mm

    台盆:W71030510X     810X504X228mm

    产品型号:GA1281Q2_080


产品推荐

Product recommendations