港澳免费资料正版大全
莫语1281-100
产品参数
产品卖点

    产品颜色:高级灰木纹

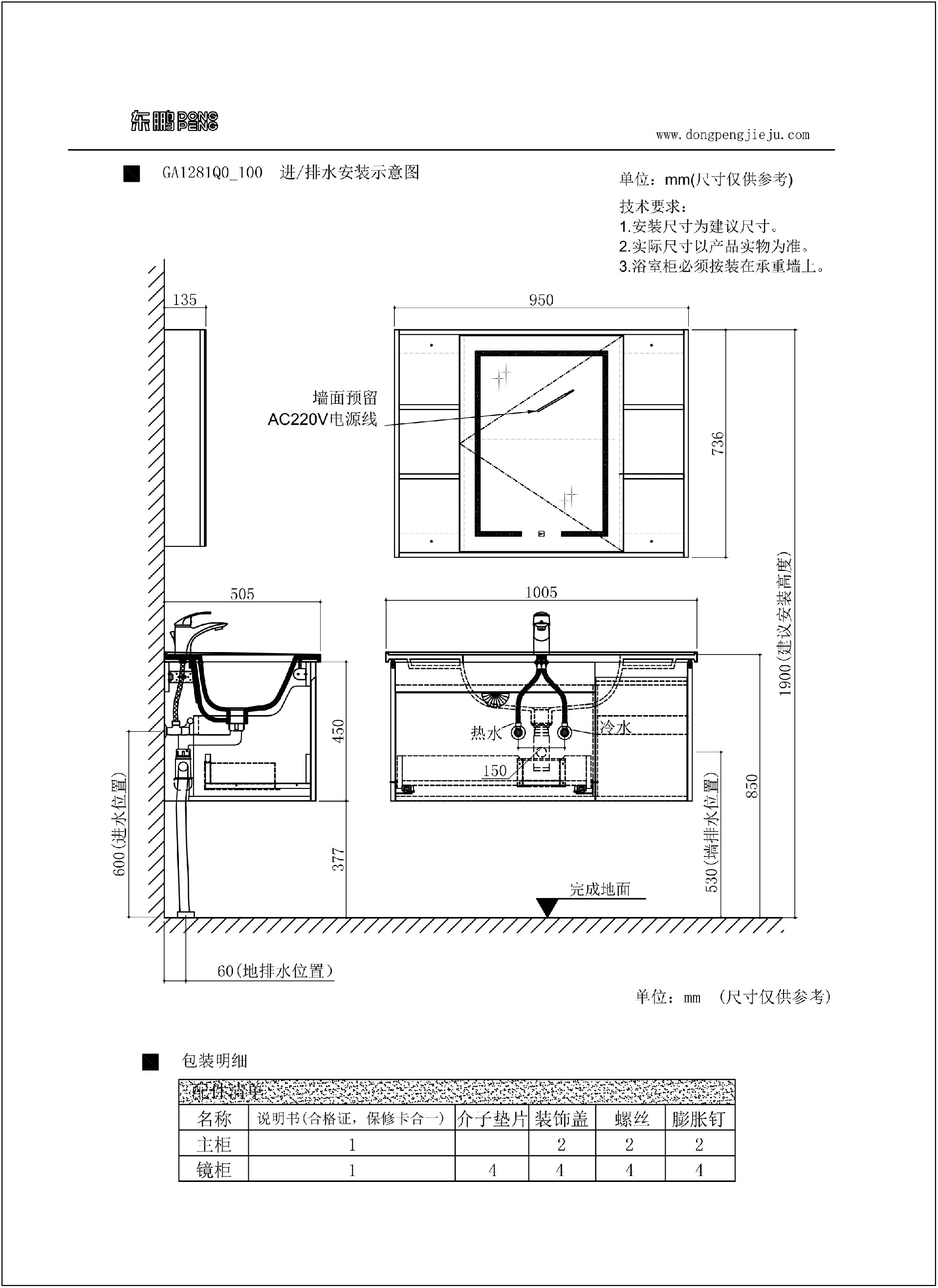
    产品尺寸:1005x505x1900mm

    产品材质:生态实木

    主柜:GA1281B0_097  975x488x400mm

    镜柜:GA1281C0_095  950x135x734mm

    台盆:W71430510X    1005x505x230mm

    产品型号:GA1281Q0_100


产品推荐

Product recommendations