港澳免费资料正版大全
半夏1341Q2-80
产品参数
产品卖点

     产品颜色:巴西金影+卡其灰

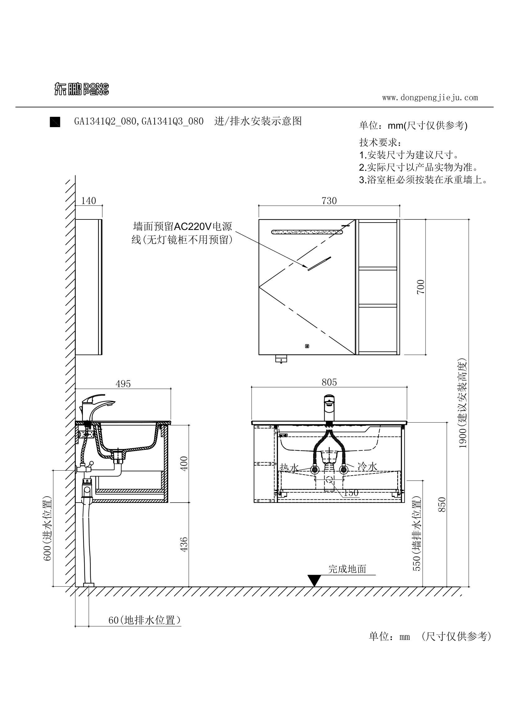
    产品尺寸:805x495x1900mm

    产品材质:生态实木

    主柜 GA1341B2_078   780x480x400mm

    镜柜 GA1341C0_073   730x140x700mm

    台盆 W3103A0510X   805X495X195mm

    产品型号:GA1341Q2_080


产品推荐

Product recommendations