港澳免费资料正版大全
半夏1341Q3-80
产品参数
产品卖点

    产品颜色:巴西金影+卡其灰

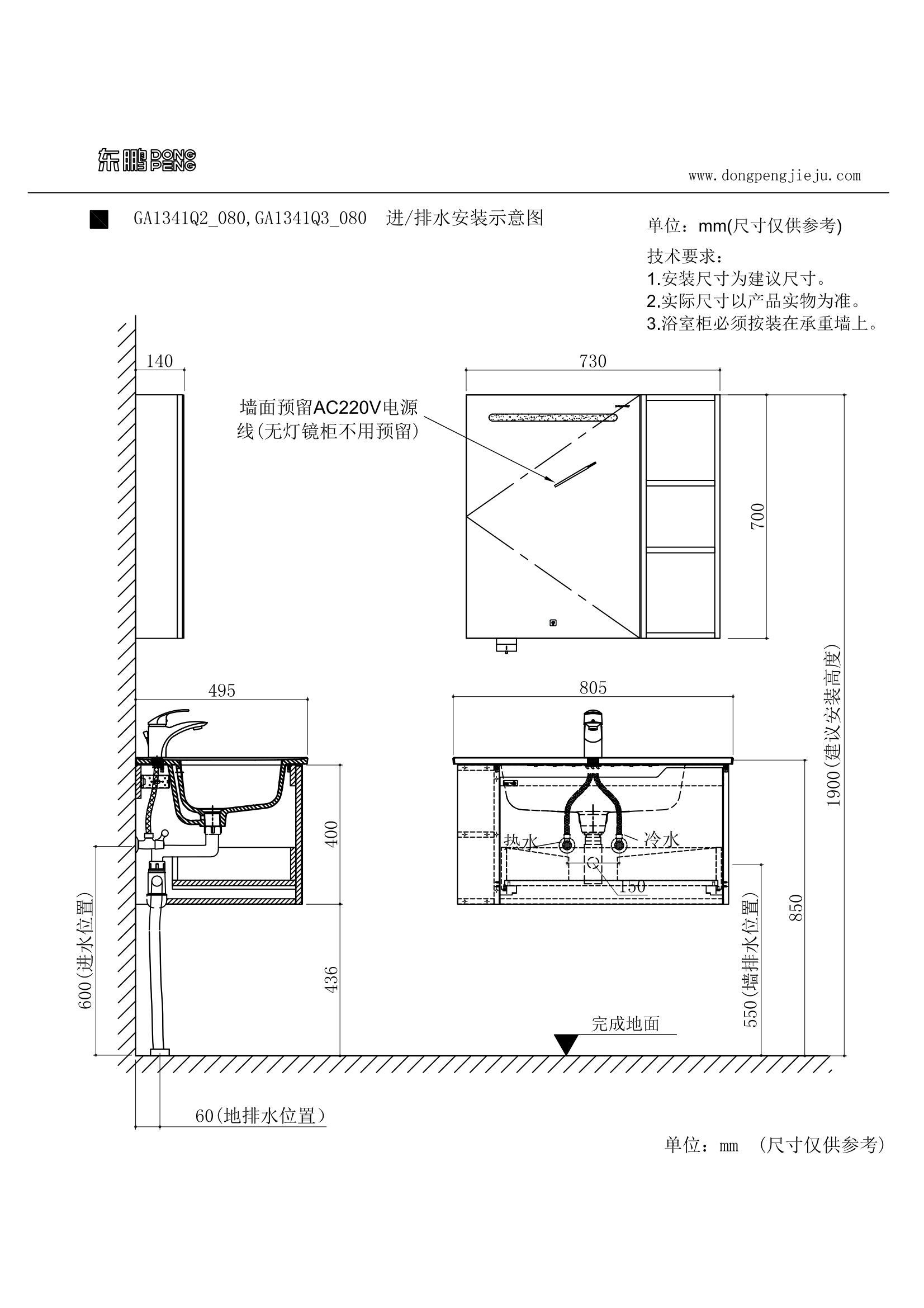
    产品尺寸:805x495x1900mm

    产品材质:生态实木

    主柜 GA1341B2_078  780x480x400mm

    镜柜 GA1341C1_073  730x140x700mm

    台盆 W3103A0510X   805X495X195mm

    产品型号:GA1341Q3_080


产品推荐

Product recommendations