港澳免费资料正版大全
一川1351
产品参数
产品卖点

    产品颜色:翡翠灰

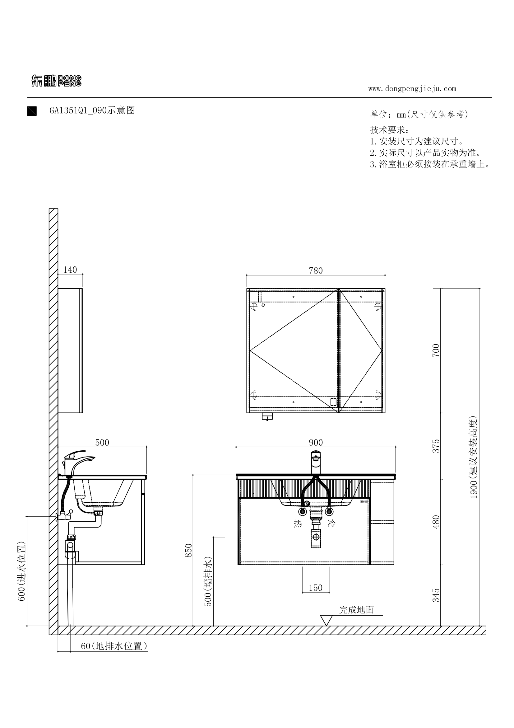
    产品尺寸:900X500x1900mm

    产品材质:生态实木

    主柜 GA1351B1_088 880x490x480mm

    镜柜 GA1351C1_078 780x140x700mm

    台盆 W70730510XC  900X500X225mm

    产品型号:GA1351Q1_090


产品推荐

Product recommendations