港澳免费资料正版大全
清涧1362-100
产品参数
产品卖点

    产品颜色:墨青+温斯顿+深空灰

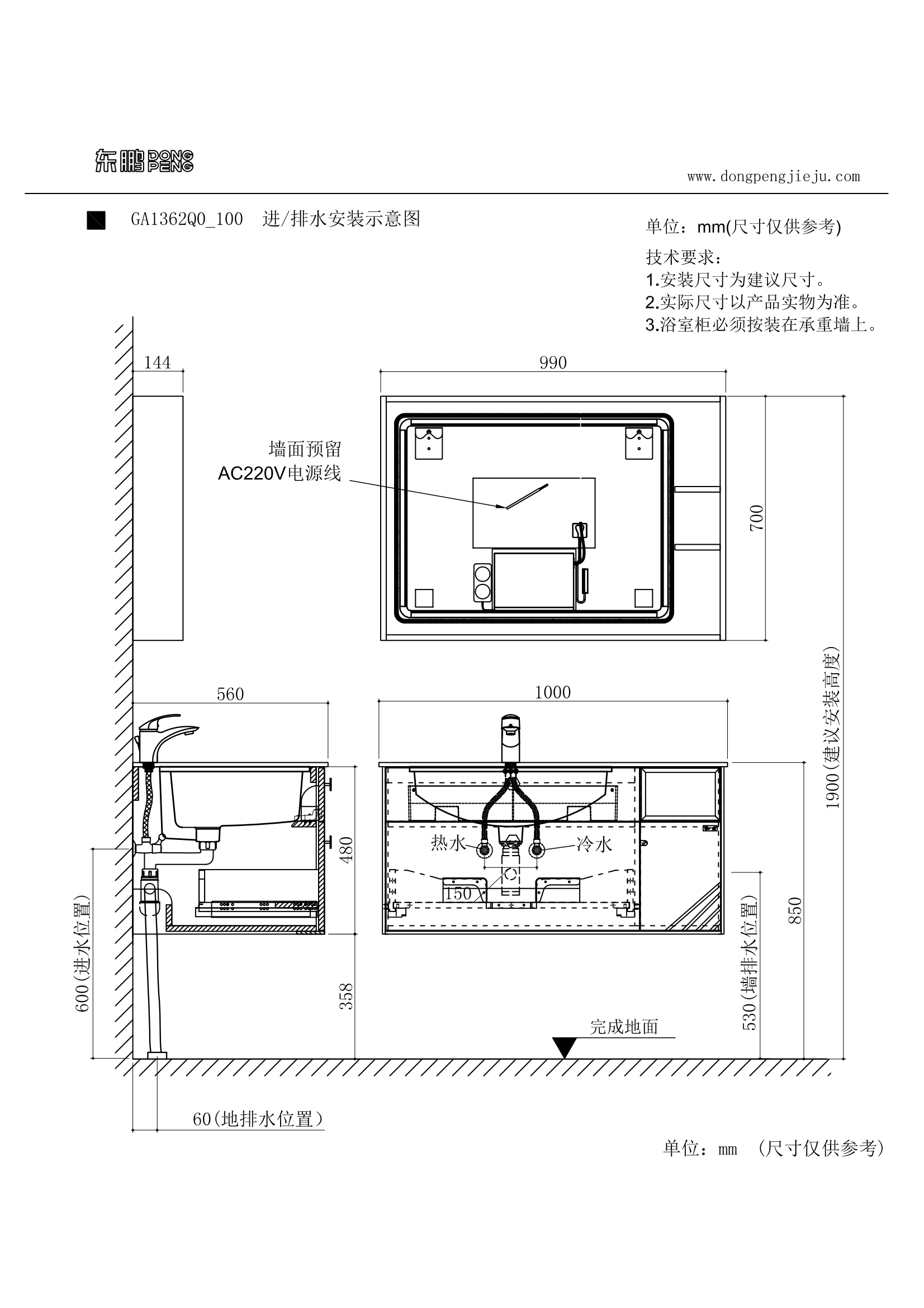
    产品尺寸:1000x510x1900mm

    产品材质:生态实木

    主柜 GA1362B0_098 980x550x480mm

    镜柜 GA1362C0_099 990x145x700mm

    M1智能镜 GA1242M1_080  800x28x600mm

    台面+陶瓷盆 GA1362T0_100  1000x560x222mm

    产品型号:GA1362Q0_100


产品推荐

Product recommendations