港澳免费资料正版大全
拾梦1424-80
产品参数
产品卖点

    产品颜色:冰莓粉

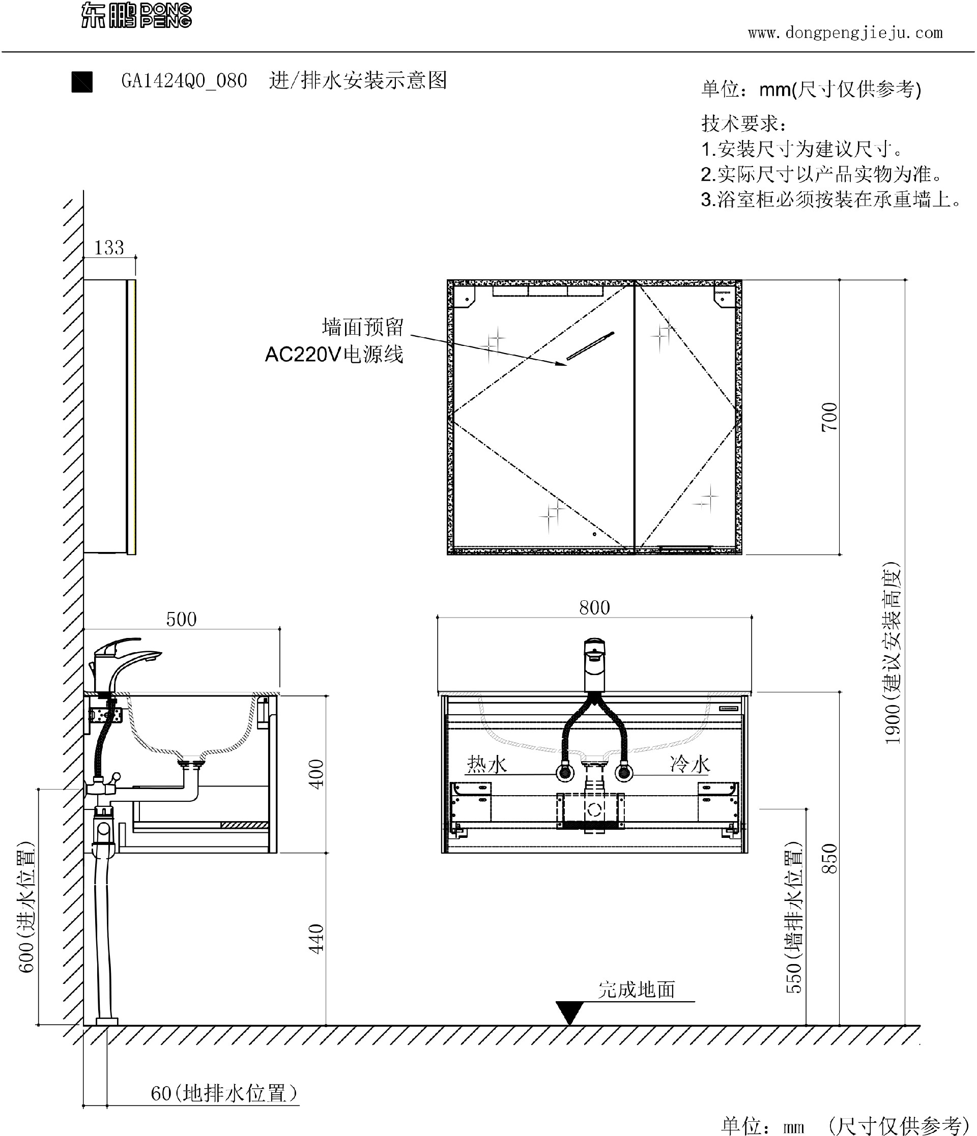
    产品尺寸:800*500*1900mm

    产品材质:生态实木+多层实木

    主柜:GA1424B0_078   780*492*400mm

    镜柜:GA1431C1_075    750*135*700mm

    台盆:D09105Q       800*500*177mm

    产品型号:GA1424Q0_080


产品推荐

Product recommendations