港澳免费资料正版大全
卡西亚1014-90
产品参数
产品卖点

    产品颜色:烟熏橡木+深空灰

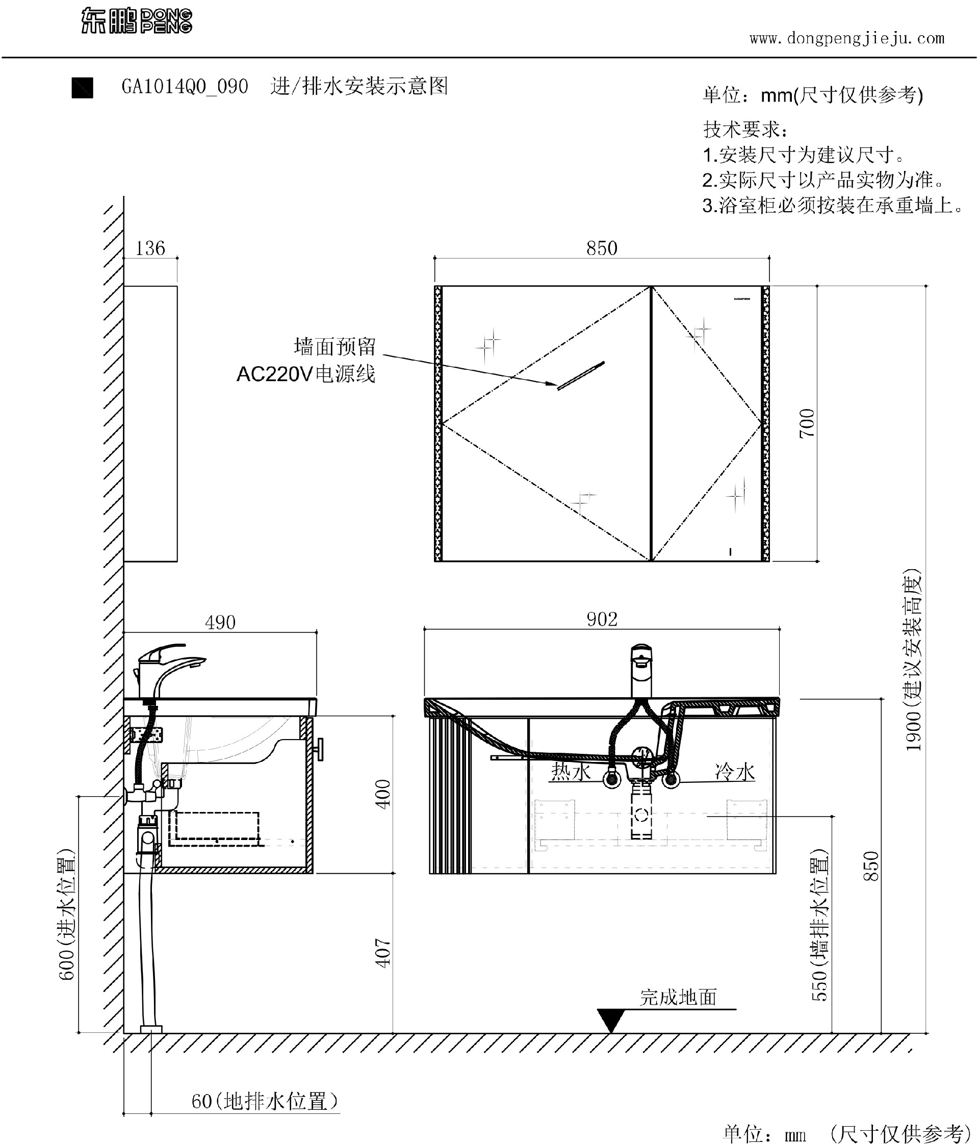
    产品尺寸:900x490x1900mm

    产品材质:生态实木+多层实木

    主柜:GA1014B0_088   880x480x400mm

    智能镜:GA1014C0_085   850x135x700mm

    陶瓷盆:W52830510X    900x490x205mm

    产品型号:GA1014Q0_090


产品推荐

Product recommendations