港澳免费资料正版大全
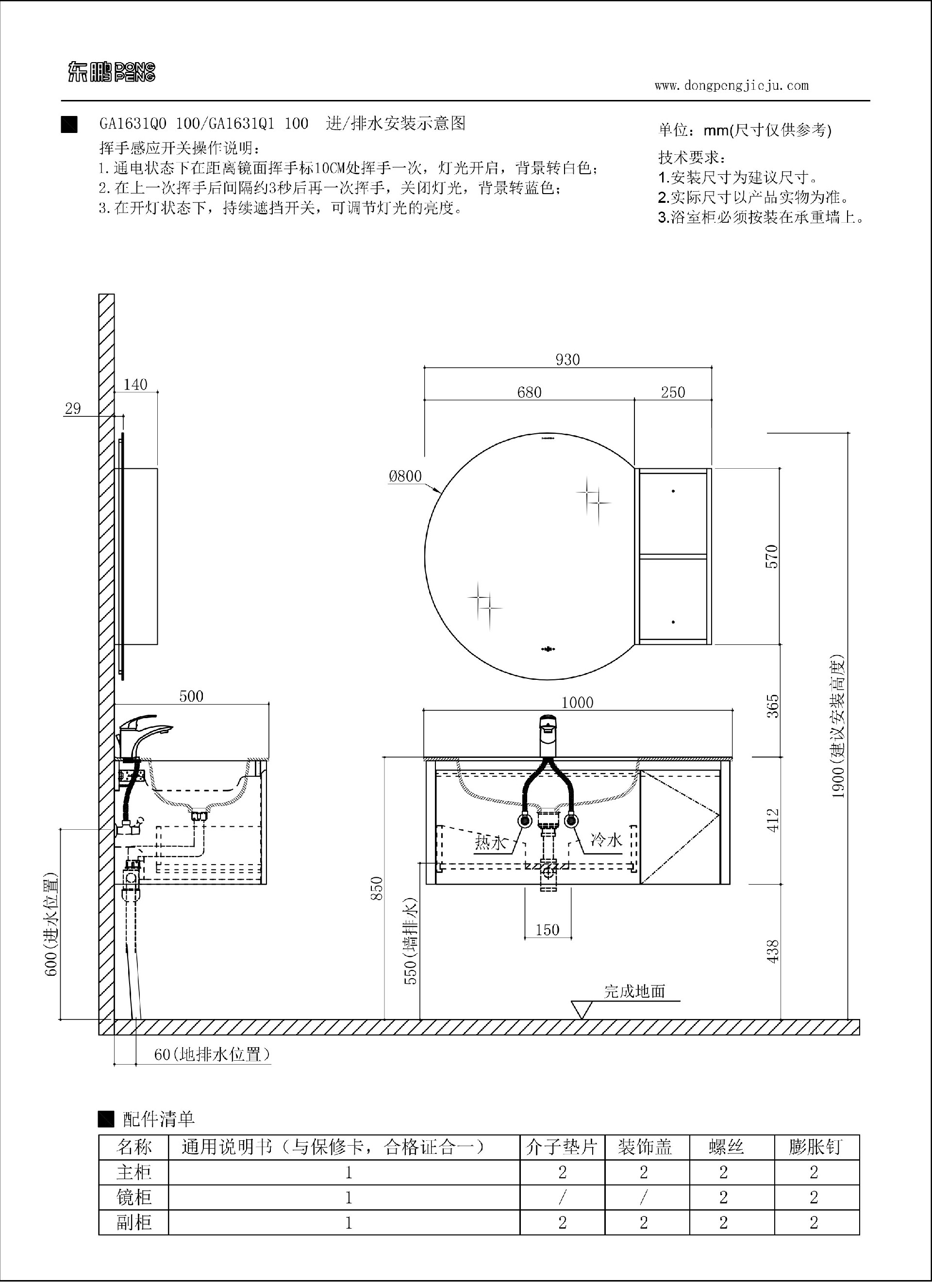
皓森1631Q0-100
产品参数
产品卖点

    产品颜色:可可棕几何菱形免漆板+圆弧可可棕同色油漆

    产品尺寸:1000x500x1900mm

    产品材质:生态实木+多层实木

    主柜:GA1631B0_098  984x492x400mm

    镜子:GA1631M0_068  680x30x800mm

    副柜:GA1631S0_025  250x140x570mm

    肤感人造石一体盆:D11405Q   1000x500x178mm

    产品型号:GA1631Q0_100


产品推荐

Product recommendations