港澳免费资料正版大全
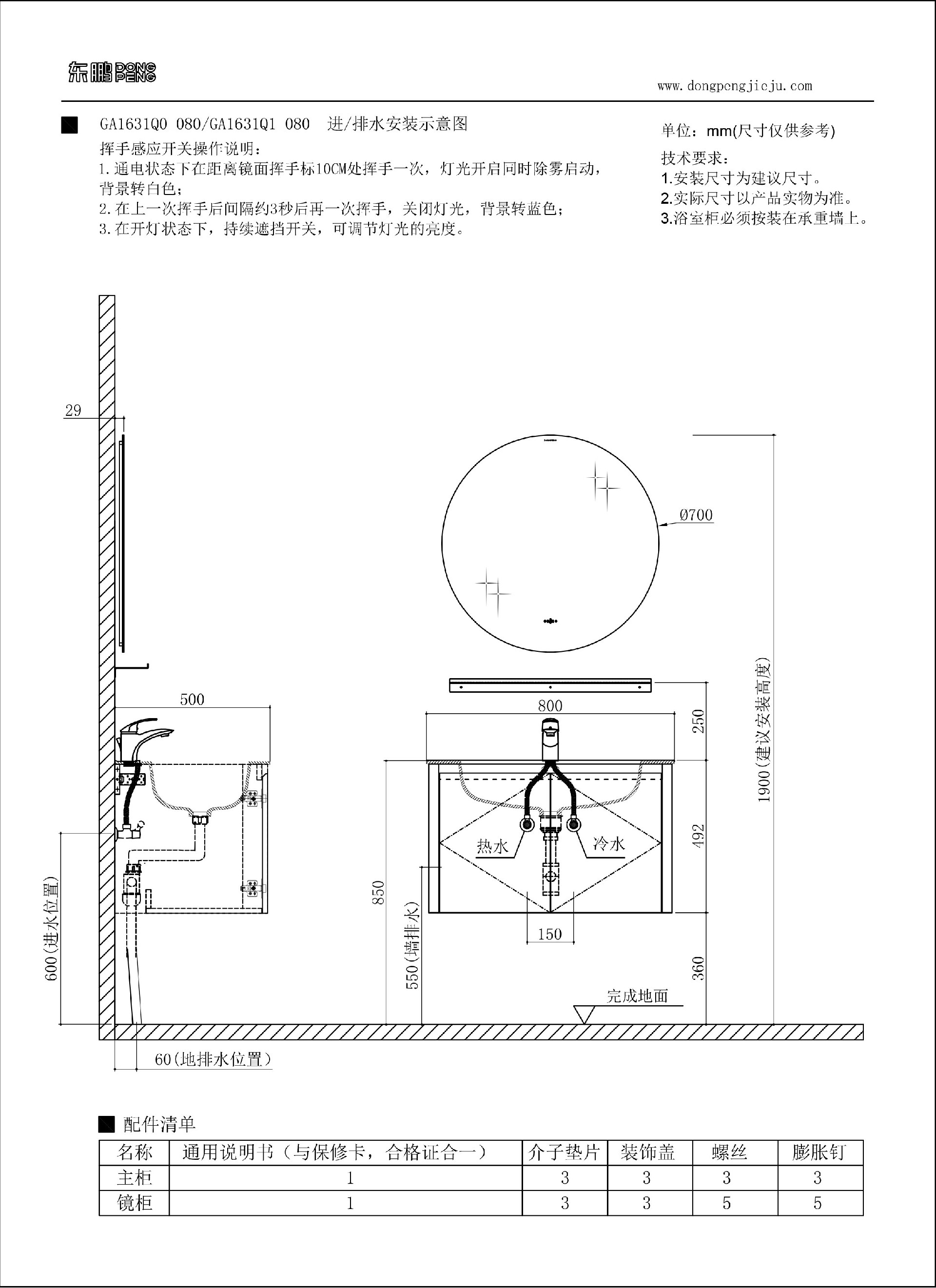
皓森1631Q1-80
产品参数
产品卖点

    产品颜色:可可棕几何菱形免漆板+圆弧可可棕同色油漆

    产品尺寸:800x500x1900mm

    产品材质:生态实木+多层实木

    主柜:GA1631B0_078  784x492x480mm

    镜子:GA1631M0_070  700x30x700mm

    无缝拼接台面:GA1631T0_080   800x500x190mm

    产品型号:GA1631Q1_080



产品推荐

Product recommendations