港澳免费资料正版大全
归洵1641-80
产品参数
产品卖点

    产品颜色:伦敦灰拉丝免漆+哑光白油漆

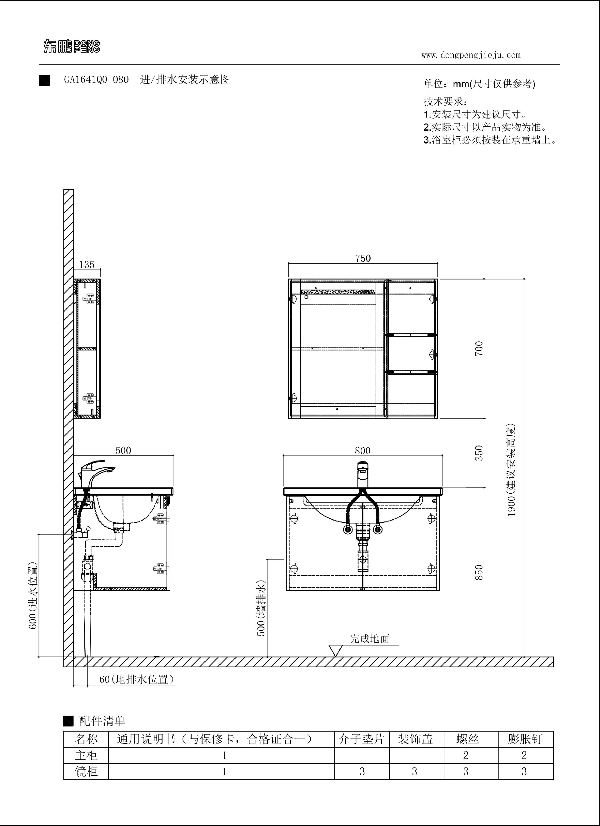
    产品尺寸:800x500x1900mm

    产品材质:生态实木+多层实木

    主柜+盆:GA1641Z0_080  800x500x518mm

    镜子:GA1641C0_075   750x135x700mm

    产品型号:GA1641Q0_080


产品推荐

Product recommendations