港澳免费资料正版大全
归洵1641-100
产品参数
产品卖点

    产品颜色:伦敦灰拉丝免漆+哑光白油漆

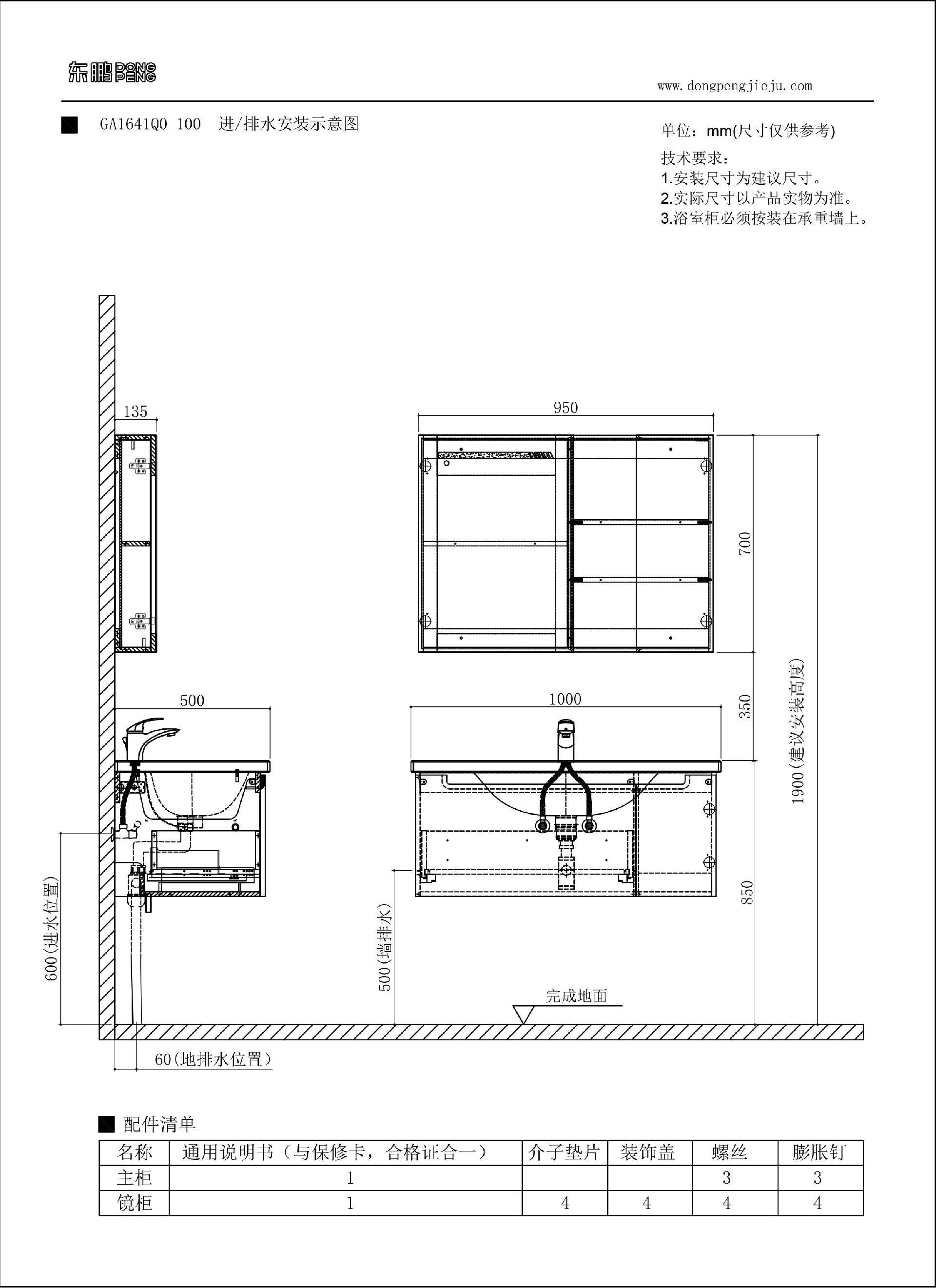
    产品尺寸:1000x500x1900mm

    产品材质:生态实木+多层实木

    主柜:GA1641B0_097  970x485x400mm

    镜子:GA1641C0_095  950x135x700mm

    盆:W38430510X  1000x500x218mm

    产品型号:GA1641Q0_100


产品推荐

Product recommendations