港澳免费资料正版大全
航天1544Q0-80
产品参数
产品卖点

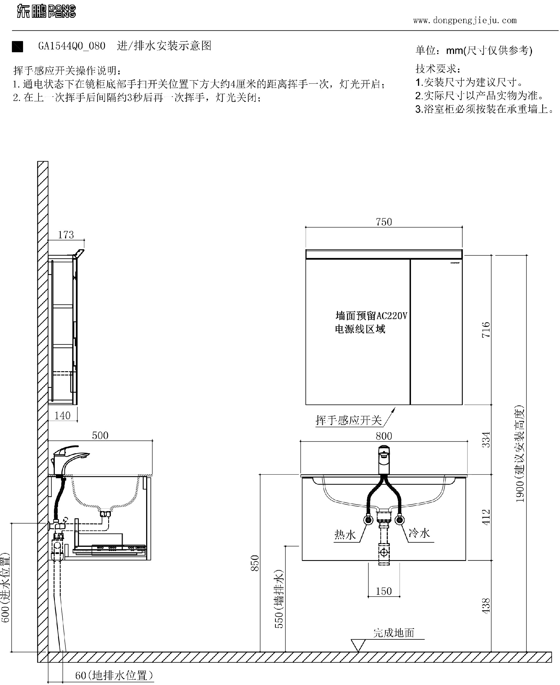
    产品型号:GA1544Q0_080

    产品尺寸:800×500×1900mm

    产品颜色:燕麦灰+卡其灰

    产品材质:多层实木

    主柜: GA1544B0_078  784×492×400mm

    镜柜: GA1544C0_075  750×173×742mm

    肤感人造石一体盆:D09305Q  800×500×177mm

产品推荐

Product recommendations