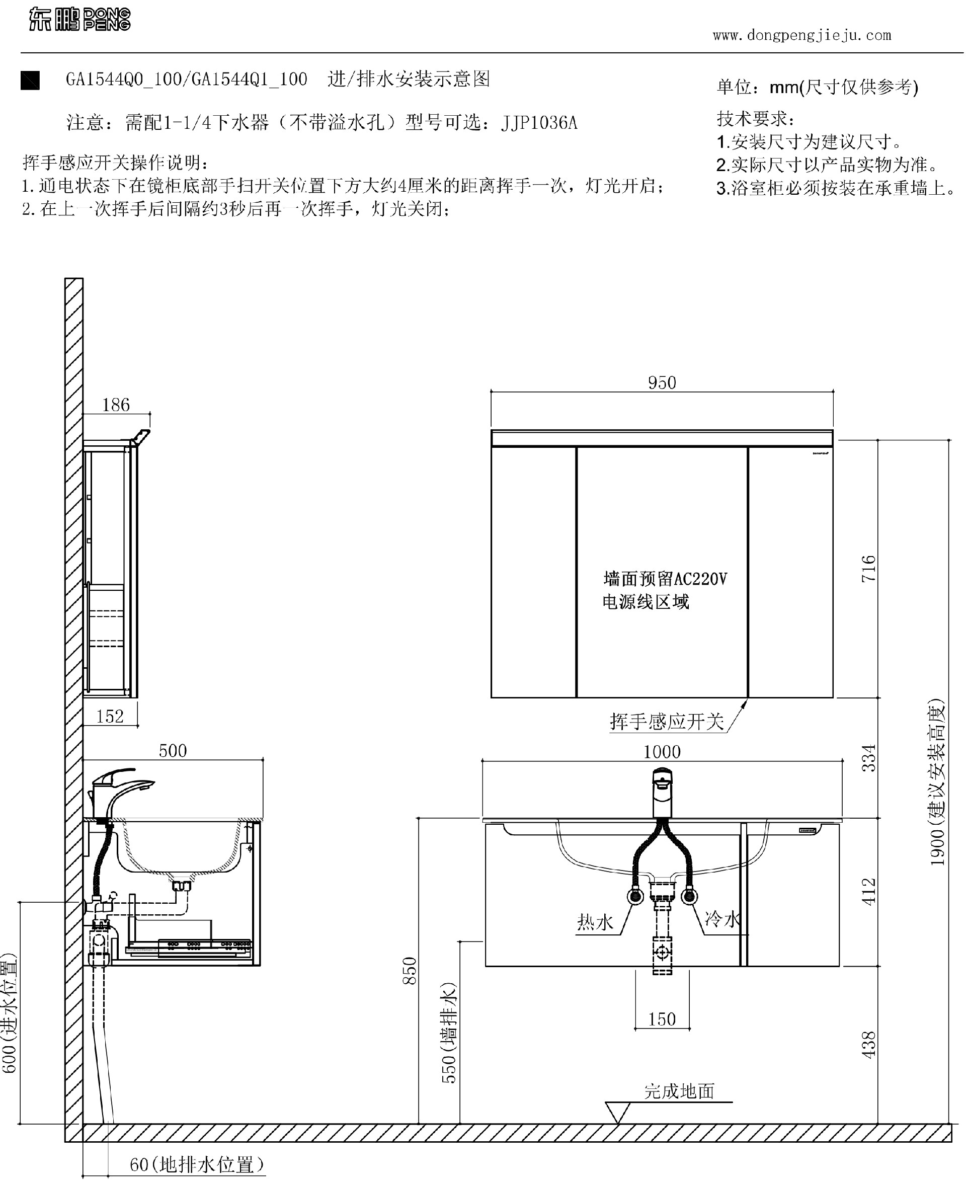
产品型号:GA1544Q0_100
产品尺寸:1000×500×1900mm
产品颜色:燕麦灰+卡其灰
产品材质:多层实木
主柜: GA1544B0_098 984×492×400mm
风水镜柜:GA1544C0_095 950×173×742mm
肤感人造石一体盆:D09405Q 1000×500×177mm
1、镜柜移门折叠设计,左右移动,灵活折叠
2、合理收纳,分层摆放,整洁有序
3、轻柔三色灯光,适配不同场合的妆容需求
4、纸巾拿取孔设计,便利抽取
5、柜体自动感应柔和灯光,夜深守护
6、卡其色肤感人造石一体盆,简约时尚