港澳免费资料正版大全
爱丽丝2291-80
产品参数
产品卖点

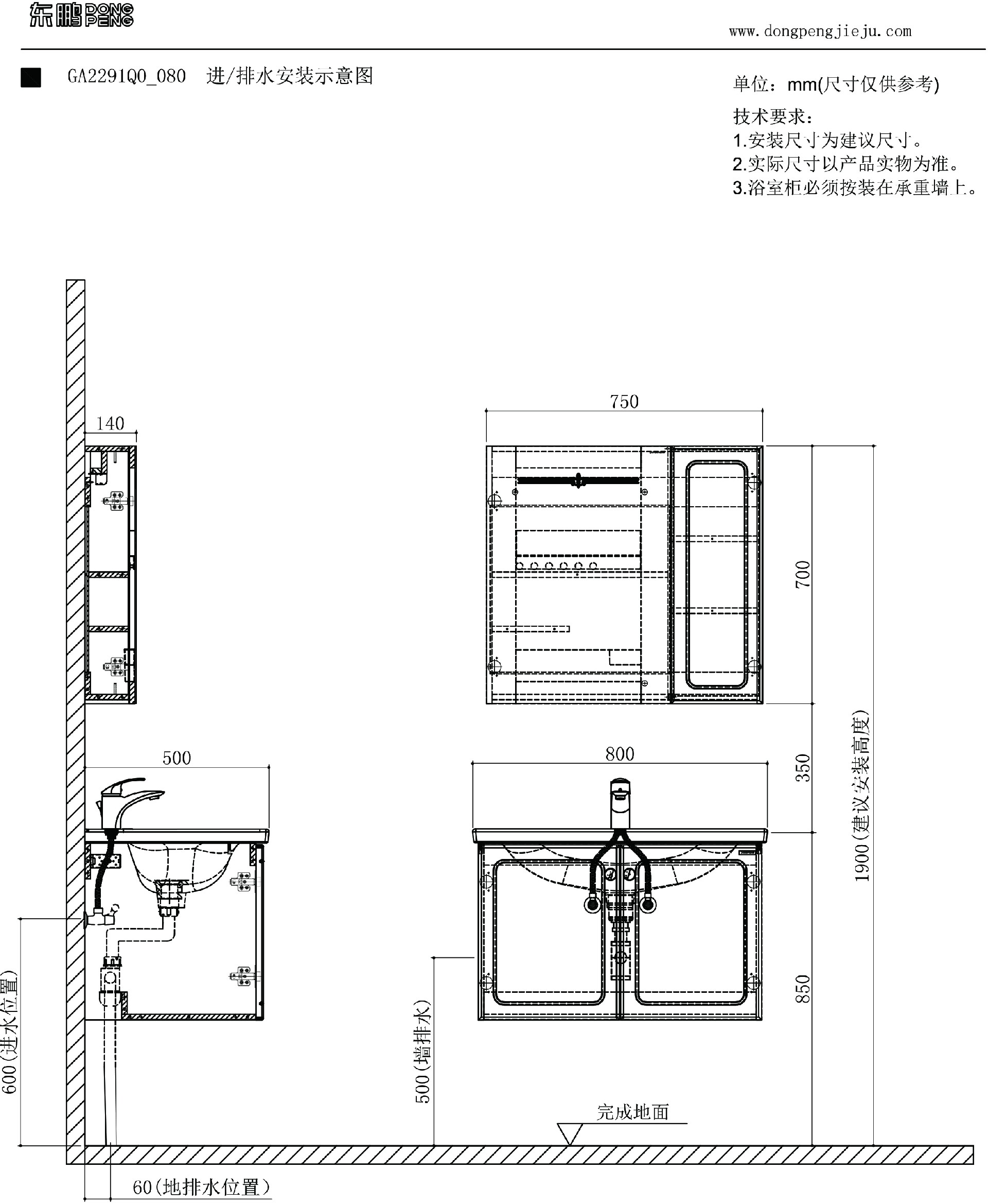
    产品型号:GA2291Q0_080

    产品颜色:奶油白

    产品材质:多层实木+生态实木

    产品尺寸:800x500x1900mm

    主柜 GA2291Z0_080

    800x500x520mm

    镜柜 GA2291C0_075

    750x140x700mm

    陶瓷一体盆 W58930510X 800x500x218mm



产品推荐

Product recommendations