港澳免费资料正版大全
卡罗娜2321-80
产品参数
产品卖点

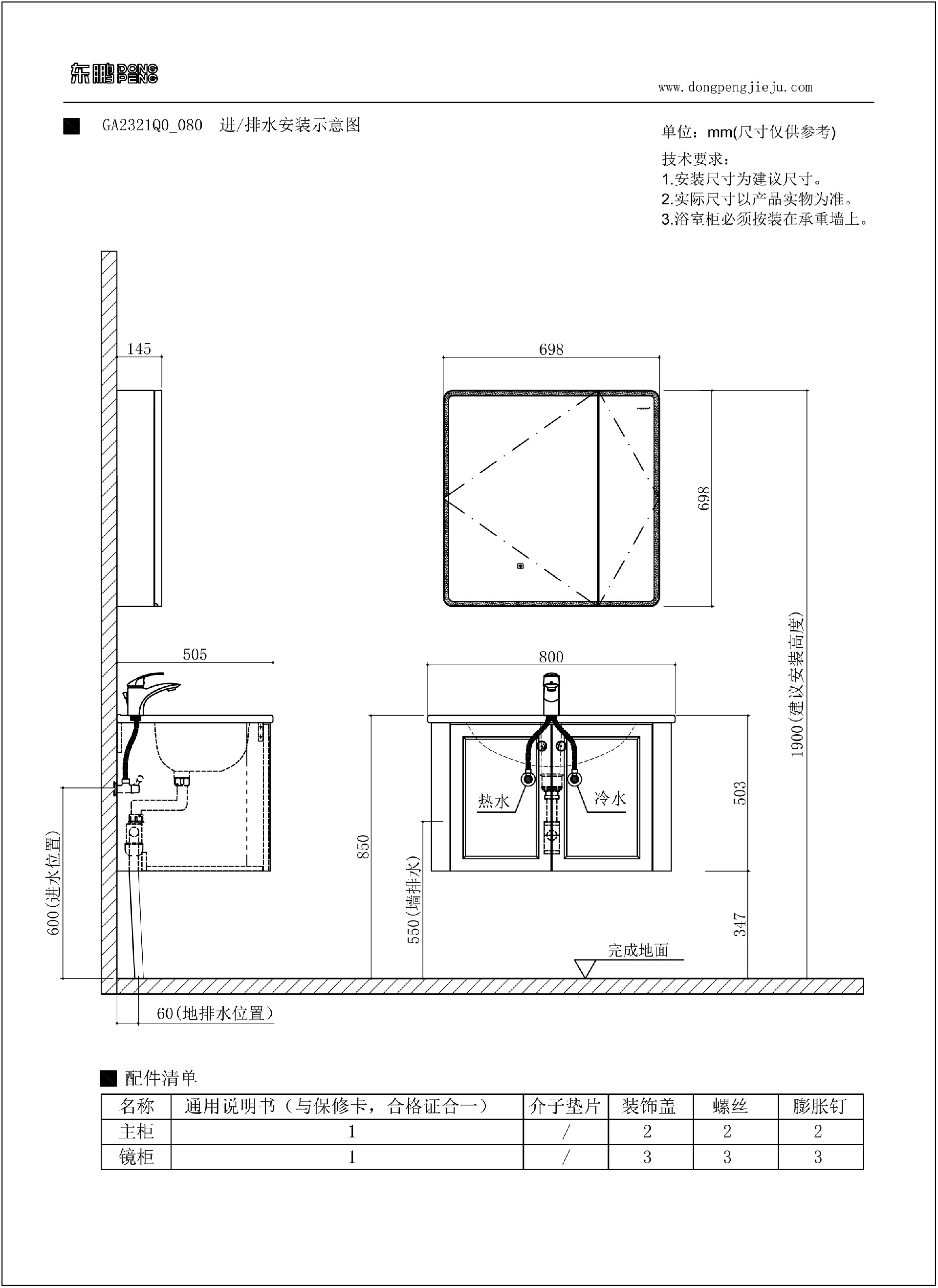
    产品型号:GA2321Q0_080

    产品颜色:浅灰蓝

    产品材质:多层实木+生态实木

    产品尺寸:800x505x1900mm 

    主柜 GA2321Z0_080 800x505x508mm

    镜柜 GA2321C0_075 750x145x700mm

    一体陶瓷盆 D22605Q 800x505x200mm


产品推荐

Product recommendations