港澳免费资料正版大全
徽憶2331-100
产品参数
产品卖点

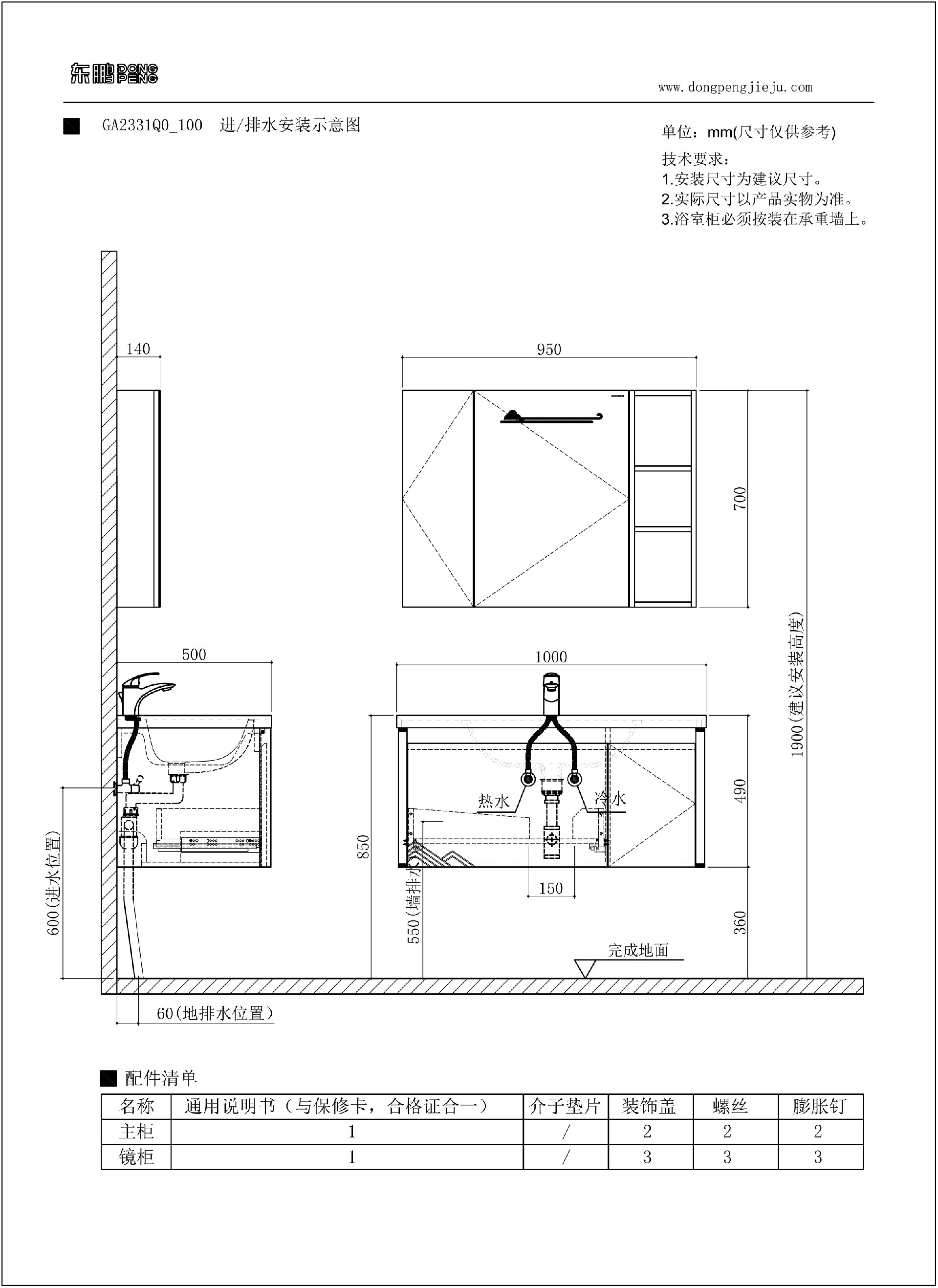
    产品型号:GA2331Q0_100

    产品颜色:胡桃棕

    产品材质:多层实木+生态实木

    产品尺寸:1000x500x1900mm 

    主柜 GA2331B0_099

    990x497x450mm

    镜柜 GA2331C0_095

    950x140x700mm

    岩板无缝一体盆 GA2331T0_100 1000x500x205mm


产品推荐

Product recommendations