当前位置:首页>产品中心>新品
港澳免费资料正版大全
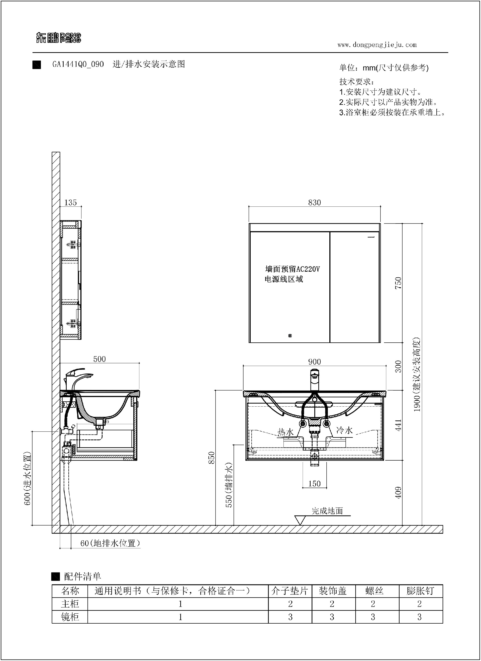
灵动1441-90
产品参数
产品卖点

    产品颜色:卡其灰

    产品尺寸:900X500x1900mm

    产品材质:生态实木+多层实木

    主柜:GA1441B0_087   870x485x400mm

    智能镜:GA1441C0_083   830x135x750mm

    陶瓷盆:W38330510X     900X500X218mm

    产品型号:GA1441Q0_090


产品推荐

Product recommendations